/
【周辺】茜部小学校
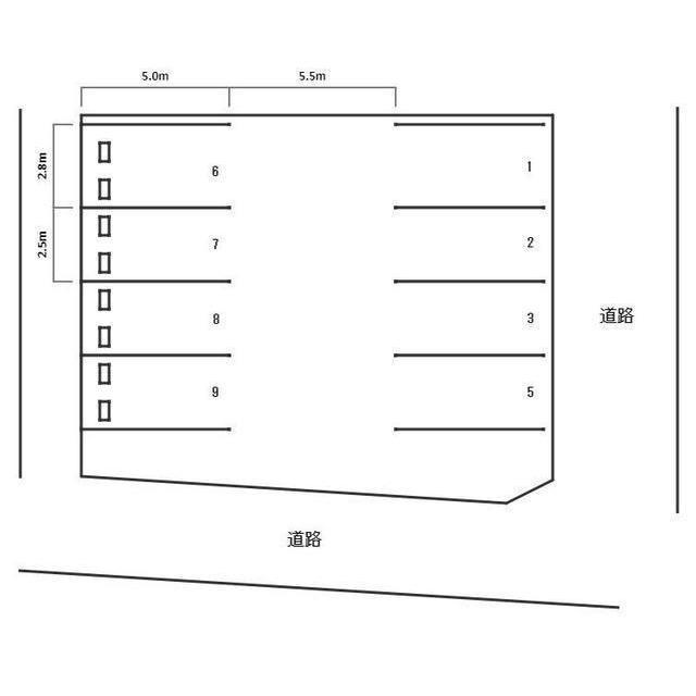
- 物件名
- 茜部本郷辻駐車場
- 価格
- 5,500円
- 管理/共益費
- -
- 築年月
- -(-)
- 総戸数
- 8戸
- 交通
-
「上茜部」バス停下車 徒歩2分
- 設備条件
-
- 設備(その他)
-
-
-
- 駐車場/月額
- -/-
- 用途地域
- 第一種住居
- 募集戸数 / 総戸数
- - / 8戸
- 取引態様
- 代理
茜部本郷辻駐車場の基本情報
茜部本郷辻駐車場の詳細情報
茜部本郷辻駐車場で募集中の物件
近隣の物件
よく見られている物件
茜部本郷辻駐車場


