/
【外観】
- 築年
- 2003年9月(築22年)
- 駐車
- 有(2台)
- 交通
-
「松籟団地」バス停下車 徒歩3分
「真竜寺」バス停下車 徒歩3分
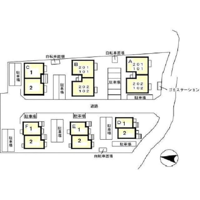
- 物件名
- Belle ville 長良 C・D・E・F
- 価格
- 7.8万円
- 管理/共益費
- 4,000円
- 築年月
- 2003年9月(築22年)
- 総戸数
- 8戸
- 交通
-
「松籟団地」バス停下車 徒歩3分
「真竜寺」バス停下車 徒歩3分
- 設備条件
-
- 駐輪場
- 設備(その他)
-
-
-
- 駐車場/月額
- 有(2台)/5,500円 (税込)
- 用途地域
- 第一種中高層住居専用
- 戸数
- 8戸 / -
- 取引態様
- 一般媒介
Belle ville 長良 C・D・E・Fの基本情報
Belle ville 長良 C・D・E・Fの詳細情報
Belle ville 長良 C・D・E・Fで募集中の物件
近隣の物件
よく見られている物件
Belle ville 長良 C・D・E・F


