/
【外観】2階外観
- 築年
- 1991年11月(築34年)
- 駐車
- 空有(4台)
- 交通
-
「則武」バス停下車 徒歩1分
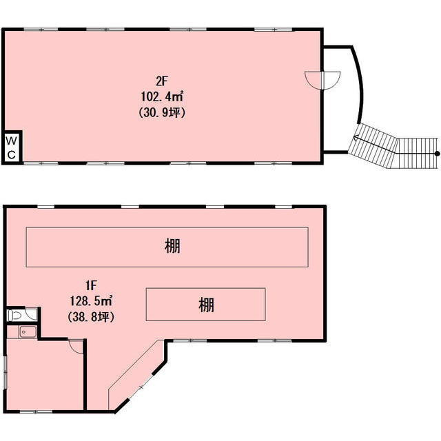
- 物件名
- 岐阜市則武中1丁目の店舗一部
- 価格
- 10万円(0.29万円/坪)
- 管理/共益費
- -
- 築年月
- 1991年11月(築34年)
- 総戸数
- 1戸
- 交通
-
「則武」バス停下車 徒歩1分
- 設備条件
-
- 駐車場/月額
- 空有(4台)/0円
- 用途地域
- 準住居
- 戸数
- 1戸 / -
- 取引態様
- 一般媒介
岐阜市則武中1丁目の店舗一部の基本情報
岐阜市則武中1丁目の店舗一部の詳細情報
岐阜市則武中1丁目の店舗一部で募集中の物件
近隣の物件
岐阜市則武中1丁目の店舗一部


