/
【駐車場】
- 物件名
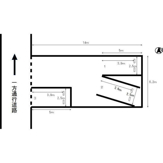
- 岐阜市坂井町1丁目の駐車場
- 価格
- 1.54万円
- 管理/共益費
- 0円
- 築年月
- -(-)
- 総戸数
- 3戸
- 交通
- 設備条件
-
- 設備(その他)
-
-
-
- 駐車場/月額
- -/-
- 用途地域
- 商業
- 戸数
- 3戸 / -
- 取引態様
- 代理
岐阜市坂井町1丁目の駐車場の基本情報
岐阜市坂井町1丁目の駐車場の詳細情報
岐阜市坂井町1丁目の駐車場で募集中の物件
近隣の物件
岐阜市坂井町1丁目の駐車場


